Convergent Office - BKC
An office space for a financial company. This was an opportunity to expand the branding into the space design. The finishes are warm and rich with combination of marble, forest green leather, sapeli wood veneers and a touch of gold (brass). A small space was transformed into a both a serious and fun office environment that allows for privacy and open workspaces.
A floor plan that accommodates corner workstation, a standing workspace, manager cabins, reception area and conference rooms.
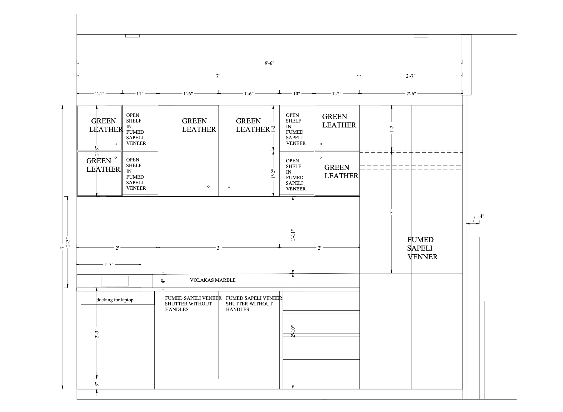
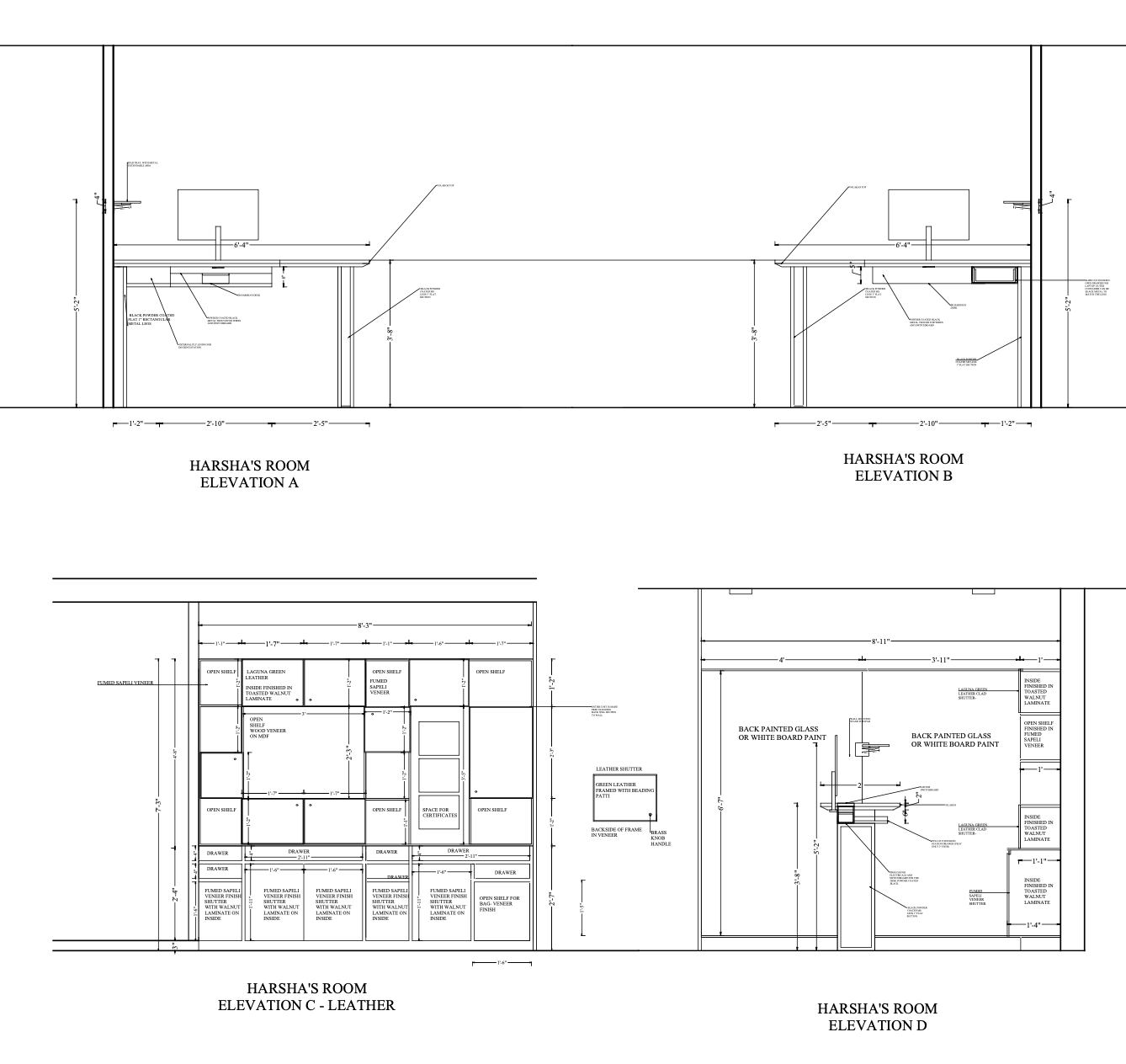
Furniture detailing
Furniture visualisations for all workspaces were created to accommodate the specific requirements of each individual in the workspace. Ergonomics and functional usage guided our design decisions on incorporating electrical, storage and lighting.
Site diaries
With work in progress, it is always a pleasure to see the site work emerging and our vision coming to life. We are deeply entrenched in the finishing process and pay attention to all details on site.

